Maison à vendre à Rillaar

Maison à vendre à Rillaar

390 000 €
Meyerveldstraat 93 LOT 5A, 3202 Rillaar
Maison à vendre à Rillaar

Général

Code ImmoMaps: T5F2DV
Signaler cette annonce

Surface habitable

209 m2

Surface au sol

540 m2

Chambres

4

Salles de bain

1

Places de parking

-

Année de construction

2025

Meublé

-

Disponiblité

-

Description

Vrijstaande nieuwbouw woning gelegen in een landelijke omgeving te Rillaar, op een steenworp van Aarschot met gunstige verbinding naar Leuven.  LOT 5A aangeduid op het opmetingsplan.

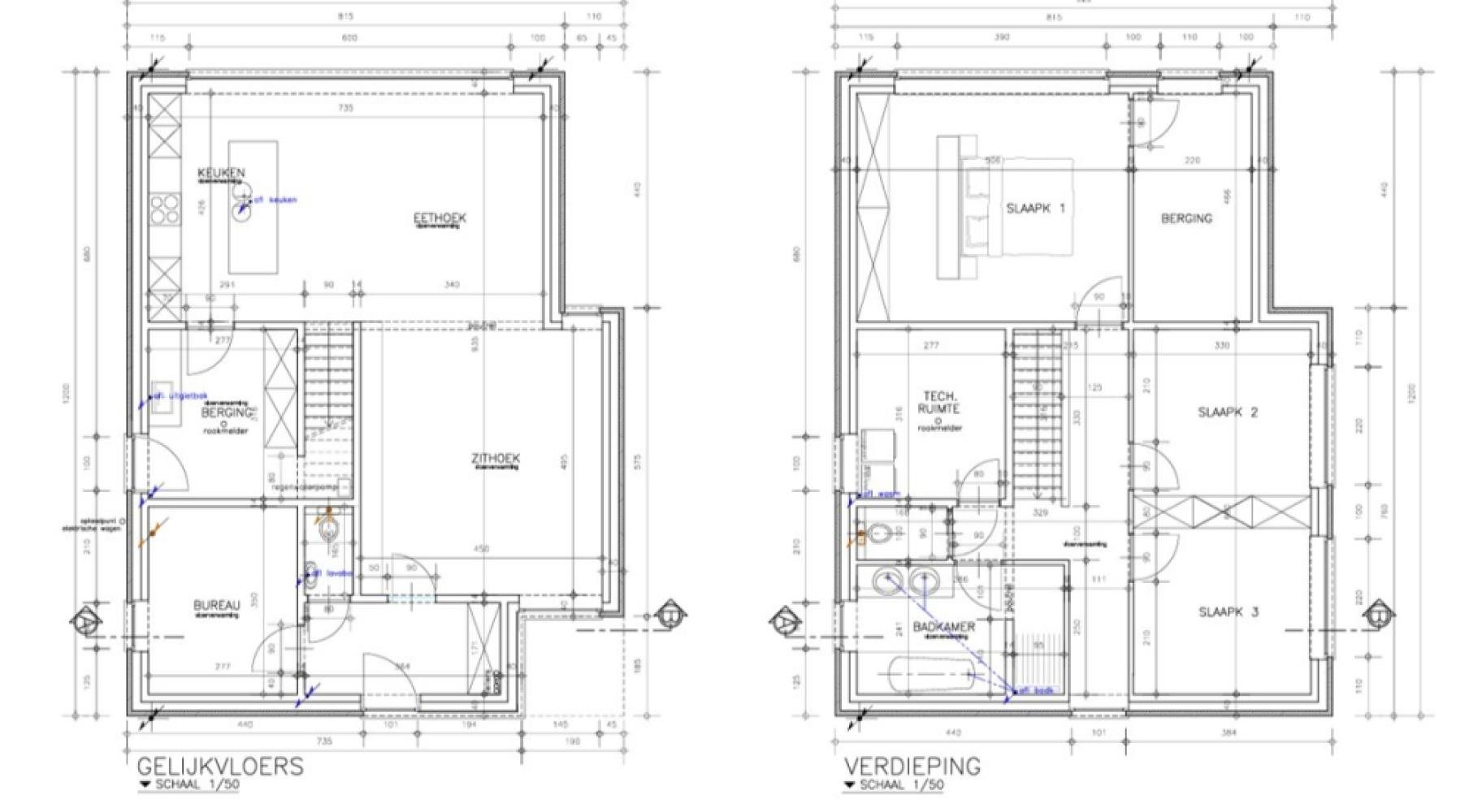
Strakke hedendaagse CASCO woning gelegen op een noord west georiënteerd perceel van 540m² met een bewoonbare oppervlakte van 209m².

- gelijkvloers : inkomhal, gastentoilet, ruime woonkamer met open keuken die een prachtig zicht op de tuin bieden. Voorraadberging. Bureaukamer of slaapkamer op het gelijkvloers.
- 1ste verdiep: 3 ruime slaapkamers, dressing of extra berging. Badkamer, apart toilet. Technische ruimte.

De verkoopprijs van 390.000 euro excl BTW en notariskosten betreft een CASCO afwerking waarbij volgende kosten zijn inbegrepen:
- ruwbouw werken 
- dakwerken
- buitenschrijnwerkerij waaronder PVC ramen dubbel glas
- aankoop grond
- kosten architecte en studiebureau
- verzekering

De woning kan ook volledig afgewerkt worden door de bouwheer. Verdere prijsinfo en lastenboek met alle details kan u verkrijgen op aanvraag. Voor meer inlichtingen nodigen wij u dan ook graag uit bij Dupont Vastgoed, maak gerust uw afspraak op 015 15 15 15

Fotomateriaal is louter illustratief en wijkt af van de actuele bouw.
 
Voir plus

Caractéristiques

  • Surface habitable 209 m²
  • Surface au sol 540 m²
  • Chambres 4
  • Salles de bain 1
  • Toilettes 2
  • A rénover Non
  • Année de construction 2025
  • Type de bien 4 façades
  • Status Disponible

Finances

Prix demandé hors droits d'enregistrement, frais de notaire et TVA.
  • Prix 390 000 €
  • Revenu cadastral -

Administration

  • Permis d'urbanisme Oui
  • Destination d'urbanisme Zone d'habitat
  • Assignation Non
  • Droit d'achat prioritaire Non
  • Autorisation de lotissement Oui
  • Patrimoine protégé -
  • Type de zone inondable Inconnu

Énergie

  • Score énergétique -
  • Niveau E 0
  • Numéro de certificat -
  • Type de chauffage -
  • Panneaux solaires Non
  • Certificat d'électricité disponible -

Plus d'immobilier de Dupont Vastgoed

Tout l'immobilier
Prendre contact