Huis te koop in Nederename

Huis te koop in Nederename

€ 310.797
Ohiostraat 124 a, 9700 Nederename
Huis te koop in Nederename

Algemeen

ImmoMaps code: WDA6YW
Zoekertje rapporteren

Bewoonbare oppervlakte

-

Grondoppervlakte

314 m2

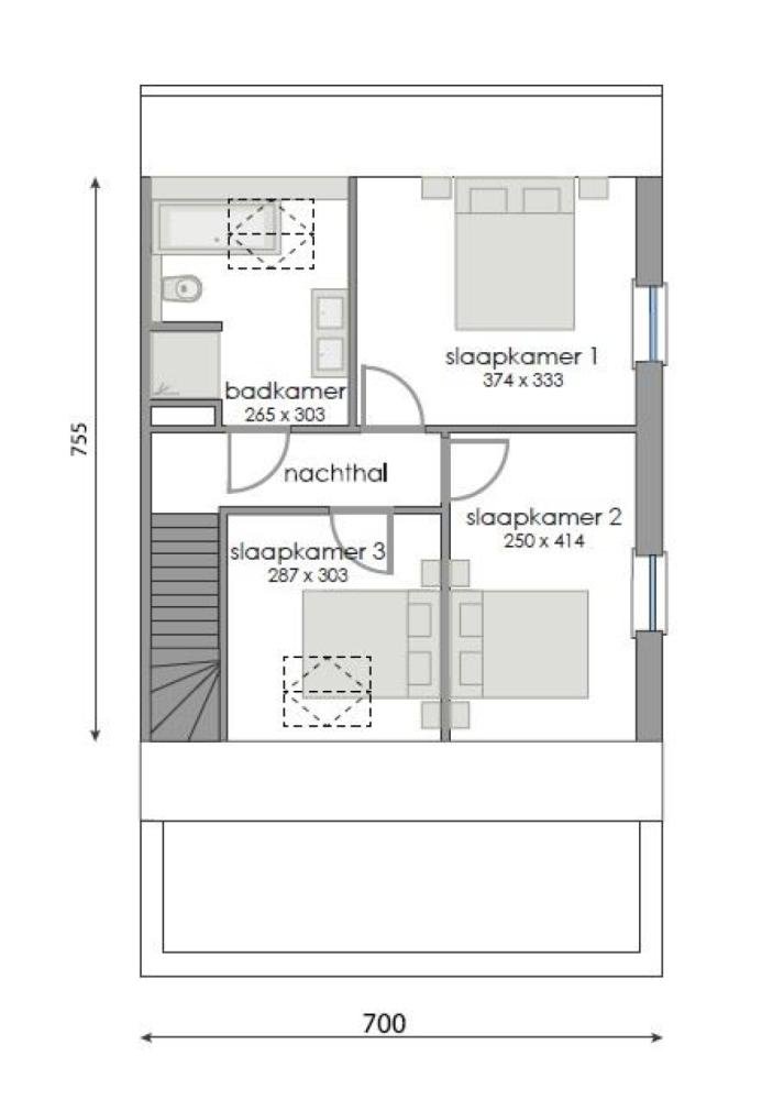
Slaapkamers

3

Badkamers

1

Parkeerplaatsen

-

Bouwjaar

2026

Gemeubeld

Neen

Beschikbaar

-

Beschrijving

TE KOOP in NEDERENAME Ohiostraat 124 a ( lot 5 )

Mooie verkaveling voor het bouwen van een half - open of open bebouwing nabij het centrum van Nederename.

Lot 5 : Opp. +/- 314 m² prijs : € 94.200

FORMULE WATER- EN WINDDICHT:
- Ruwbouwwerken
- Timmerwerken
- PVC ramen met beglazing kw 1.0
- Dak- & zinkwerken
_________________
= € 216.597 excl. btw

OPTIE AFWERKING:
- Elektriciteit en ventilatie
- Chape -en vloerisolatie
- Pleisterwerken
- Sanitaire werken ( HW toestellen = € 4.000 excl. btw )
- Warmtepomp lucht/water ( Viessmann )
- Bevloering ( HW vloer : 35€/m² HW plinten : 12.50€/lm HW wandtegels : 25€/m² )
- Keukeninstallatie ( HW = € 8.000 excl. btw)
- Binnen schrijnwerk
- Voegwerken
- Blowerdoortest
- Zonnepanelen 8st. (435 Wp )
_________________
= € 97.311 excl.btw

WIJ BOUWEN OOK A LA CARTE
Opties zijn mogelijk tot net voor " Normale Bewoonbaarheid" (volgens aannemingsovereenkomst)
Informeer naar onze interessante HUISRUIL-FORMULE

zie ook : WWW.SPEYBROECK.BE
Bel 0473 300 700 of GRATIS 0800 15 700
Meer weergeven

Eigenschappen

  • Grondoppervlakte 314 m²
  • Slaapkamers 3
  • Badkamers 1
  • Toiletten 2
  • Te renoveren Neen
  • Gemeubeld Neen
  • Bouwjaar 2026
  • Type bebouwing Halfopen bebouwing
  • Status Beschikbaar

Financieel

Vraagprijs excl. verkooprechten, notariskosten en eventuele btw.
  • Prijs € 310.797
  • Kadastraal inkomen -

Administratief

  • Stedenbouwkundige vergunning Neen
  • Stedenbouwkundige bestemming Woongebied (Wg)
  • Dagvaarding Neen
  • Voorkooprecht Neen
  • Verkavelingsvergunning Neen
  • Beschermd erfgoed -
  • Overstroming zonetype Onbekend

Energie

  • Energie score -
  • E-peil 15
  • Certificaat nummer -
  • Type verwarming -
  • Zonnepanelen Ja
  • Elektrische keuring beschikbaar Ja, conform

Meer vastgoed van Woningbouw SPEYBROECK

Alle vastgoed
Neem contact op