Huis te koop in Zele

Huis te koop in Zele

€ 430.000
Minister E. Rubbenslaan 24, 9240 Zele
Huis te koop in Zele

Algemeen

ImmoMaps code: 2NVLJ1
Zoekertje rapporteren

Bewoonbare oppervlakte

313 m2

Grondoppervlakte

123 m2

Slaapkamers

4

Badkamers

2

Parkeerplaatsen

1

Bouwjaar

1955

Gemeubeld

Neen

Beschikbaar

Mits inachtneming huurders

Beschrijving

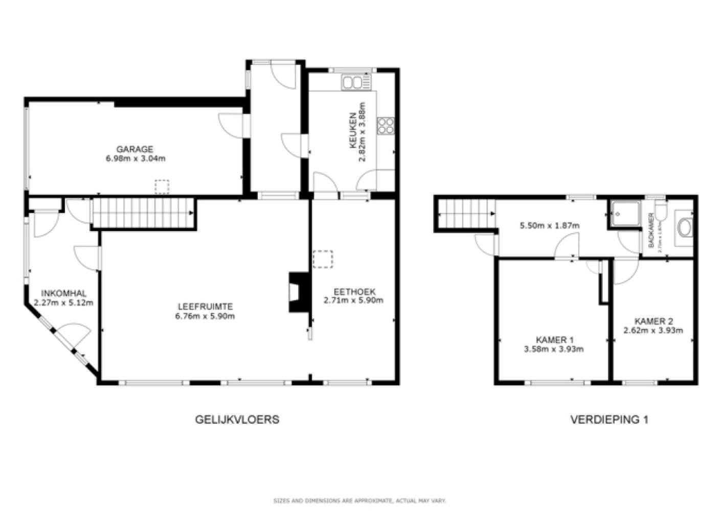
Ruime (kangoeroe)woning of investeringspand in hartje Zele Op een toplocatie in het centrum van Zele, vlak bij het park, bevindt zich deze unieke eigendom met tal van mogelijkheden. Het pand bestaat uit een ruime gezinswoning mét garage en een afzonderlijk appartement met eigen ingang. * Gezinswoning: 3 slaapkamers, lichtrijke leefruimte, ingerichte keuken, badkamer en inpandige garage. * Appartement: 1 slaapkamer, leefruimte met keuken en aparte badkamer.
 Beide wooneenheden zijn volledig van elkaar gescheiden, elk met eigen voorzieningen, maar toch dicht bij elkaar – ideaal als kangoeroewoning, voor samenwonende gezinnen of als zorgwoning. Dankzij de praktische indeling kan de eigendom ook eenvoudig worden omgevormd tot één zeer ruime woning met twee badkamers, of benut worden als vrij beroep dankzij de uitstekende zichtlocatie. Vandaag zijn beide wooneenheden verhuurd, wat deze eigendom eveneens interessant maakt als investering met onmiddellijk rendement. Extra troeven: * EPC-label D – geen renovatieplicht * Conforme elektrische keuring * Asbestveilig * Dubbel adres: Minister E. Rubbenslaan 24 & Dreef 9, Zele
 De woning vraagt een opfrissing voor wie zelf wil intrekken, maar biedt een solide basis en eindeloos potentieel. Een unieke kans in het centrum van Zele!
----
english
----
Francais
Meer weergeven

Eigenschappen

  • Bewoonbare oppervlakte 313 m²
  • Grondoppervlakte 123 m²
  • Slaapkamers 4
  • Badkamers 2
  • Toiletten 2
  • Garages / parkeerplaatsen 1
  • Terras Ja
  • Zwembad Neen
  • Te renoveren Ja
  • Gemeubeld Neen
  • Bouwjaar 1955
  • Type bebouwing Halfopen bebouwing
  • Status Beschikbaar
  • Beschikbaar Mits inachtneming huurders

Financieel

Vraagprijs excl. verkooprechten, notariskosten en eventuele btw.
  • Prijs € 430.000
  • Kadastraal inkomen € 1.257

Administratief

  • Stedenbouwkundige vergunning Ja
  • Stedenbouwkundige bestemming Woongebied (Wg)
  • Dagvaarding Neen
  • Voorkooprecht Neen
  • Verkavelingsvergunning Neen
  • Beschermd erfgoed -
  • Overstroming zonetype Niet-overstromingsgevoelig

Energie

  • Energie score 340 kWh / (m²jaar)
  • E-peil -
  • Certificaat nummer 20250723-0003652329-RES-1
  • Type verwarming Gas
  • Elektrische keuring beschikbaar Ja, conform

Meer vastgoed van Altro Vastgoed Dendermonde

Alle vastgoed
Neem contact op